Großartige Galeriewohnung in beliebter Lage
-
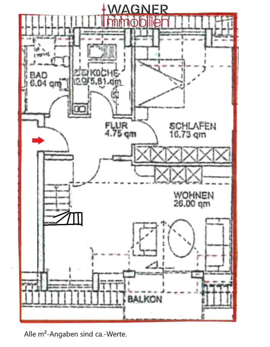
Diese Wohnung beeindruckt neben ihrer zentralen, aber dennoch sehr ruhigen, Wohnlage durch die individuelle Raumaufteilung. Das Herzstück der Wohnung ist der helle Wohn-/Essbereich mit Blick in die offene Galerie. Der Balkon verspricht einen romantischen Blick über die Dächer Bockenheims und ins Grüne. Die zahlreichen Bäume der hauseigenen Grünanlage schaffen ein großes Plus an Privatsphäre und zaubern eine einzigartige Wohlfühlzone. Die Küche ist mit einer geschmackvollen Einbauküche ausgestattet und im Kaufpreis bereits beinhaltet. Ein absolutes Plus sind die beiden Bäder im unteren und oberen Bereich der Wohnung. Somit sind Sie flexibel bei der Raumaufteilung und der Galeriebreich kann frei als Couchingzone, Schlaf- oder Arbeitsbereich genutzt werden. Der praktische Abstellraum auf der Galerieebene bietet viel Stauraum für Ordnungsliebende.
Die Wohnung befindet sich in der obersten Etage (3. OG) einer sehr gepflegten Eigentumswohnanlage mit weitläufigen Grünflächen und ist ein wahres Refugium mitten in der City und somit der ideale Rückzugsort nach einem hektischen Arbeitstag. -
Flächen
- Wohnfläche: 86 m²
- Nutzfläche: 6 m²
- Zimmer insgesamt: 3
- Schlafzimmer: 1
- Badezimmer: 2
- Separate WCs: 2
- Etagen: 3
- Etage: 3
- Stellplatzart: Freiplatz
- Außenstellplätze: 1
- Balkone: 1
Zustand & Erschließung
- Baujahr: 2011
- Zustand: gepflegt
- Keller: voll unterkellert
Sonstiges
Vorsorglich weisen wir darauf hin, dass die von uns weitergegebenen Objektinformationen, Unterlagen, Pläne usw. vom Eigentümer stammen. m²-Angaben sind ca.-Werte. In den Plänen eingezeichnete Einrichtungen dienen lediglich als Möblierungsvorschläge, wenn nicht anders angegeben. Eine Haftung für die Richtigkeit oder Vollständigkeit der Angaben übernehmen wir nicht. Es obliegt dem Interessenten, die darin enthaltenen Objektinformationen und Angaben auf ihre Richtigkeit hin zu überprüfen. Alle Immobilienangebote sind freibleibend und vorbehaltlich Irrtümer, Zwischenverkauf- und Vermietung oder sonstiger Zwischenverwertung. Eingezeichnete
WAGNER Immobilien ist als Immobilienmakler und Experte für Hausverwaltung für Ihre Interessen tätig. So helfen wir Ihnen mit unserem Fachwissen dabei, Ihre Immobilie zu attraktiven Preisen zu verkaufen. Seit ca. 15 Jahren ist der Inhaber, Markus Wagner, im Immobilienvertrieb und in der Mietverwaltung tätig. Durch ständige Weiterbildungen sind wir immer auf dem neuesten Stand was den Immobilienmarkt in und um Frankfurt angeht
Der Erfolg eines Immobilienverkaufs hängt wesentlich von den Kenntnissen über den Immobilienmarkt ab. Für Ihr Objekt setzen wir als Immobilienmakler diese Kenntnisse und unser Know-how ein. So nehmen wir eine fundierte Bewertung Ihrer Immobilie vor, die als Basis für die Festlegung eines lukrativen Angebots dient. Dazu setzen wir Ihr Objekt optimal in Szene und offerieren es über die aussichtsreichsten Kanäle auf dem Immobilienmarkt.
Unser Ziel ist die Vermarktung Ihrer Immobilie zum besten Preis und dies innerhalb kürzester Zeit. Auch als professionelle und erfahrene Hausverwalter werden wir gern für Sie tätig.
Setzen Sie sich ganz einfach und unverbindlich mit uns in Verbindung. Gern beraten wir Sie in einem kostenlosen Informationsgespräch. Ein Anruf genügt. Auch über eine Kurznachricht freuen wir uns. Telefon 069 – 95 15 74 80 bzw. info@wagner-immobilienprofi.de- Immobilie ist verfügbar ab: nach Absprache
-
// 2 Tageslicht-Bäder
// Einbauküche
// Badmöbel
// Fenster-Plissees
// Ruhe-Balkon
// Praktischer Abstellraum in der Wohnung
// Plus eigenes Kellerabteil
// Pkw-Stellplatz- Art der Ausstattung: gehoben
- Heizungsart: Zentralheizung
- Befeuerung: Gas
- Bodenbelag: Parkett
- Badausstattung: Dusche, Badewanne, Fenster
- Küche: Einbauküche
-
- Energieausweis-Art: Bedarf
- Energieausweis gültig bis: 31.03.2026
- Endenergiebedarf: 101,59 kWh/(m²*a)
- Primärenergieträger: Gas
- Energieausweis-Ausstellungsdatum: 16.03.2026
- Energieausweis-Jahrgang: vor 2014
- Energieausweis-Gebäudeart: Wohngebäude
-
Die Wohnung begeistert durch ihre optimale Lage. Ruhig, am Rande des Diplomatenviertels mit seinen weitläufigen alleenartigen Wohnstraßen. Aber dennoch zentral, nur 5 Minuten fußläufig zur quirligen Leipziger Straße mit den zahlreichen und vielfältigen Restaurants und Einkaufsmöglichkeiten. Frankfurts beliebte Grünfläche, der Grüneburgpark, ist sehr nahegelegen und lädt zu verschiedenen Freizeitaktivitäten ein.
Vervollständigt wird das hohe Maß der Mobilität durch die sehr gute Anbindung an die Straßenbahnlinie 16 (Haltestelle quasi vor Ihrer Haustür). Sie fährt über die Bockenheimer Warte mit Umsteigemöglichkeiten in die U-Bahnen U4, U6, U7 weiter zur Messe, Hauptbahnhof, Südbahnhof bis zur südlichen Stadtgrenze Offenbach.
Und wer öfters mit dem Auto unterwegs ist, genießt den kurzen Weg zur Autobahn A 66 mit unmittelbarer Verbindung an die weiterführende Autobahn A 5 Richtung Flughafen Rhein-Main.
-
- Kaufpreis: 590.000 €
- Käuferprovision: 2.975 %
- Außenstellplatzkaufpreis: 7.500 €
Grundrisse













